$450,000 Sale
Listed 2 hours ago
15 MALIGNE Drive
· 4
· 2.50
· 2
· 1204.92
Key Facts
Key facts for 15 MALIGNE Drive
Property Type
House, Bungalow
Parking
Double Garage Detached,Heated,Insulated 2 garage, Double Garage Detached,Heated,Insulated
MLS®
E4460499
Size
1204.92 sqft
Basement
Full,Finished, Fully Finished
Listed on
-
Lot size
-
Tax
-
Days on Website
-
Year Built
1976
Maintenance Fee
-
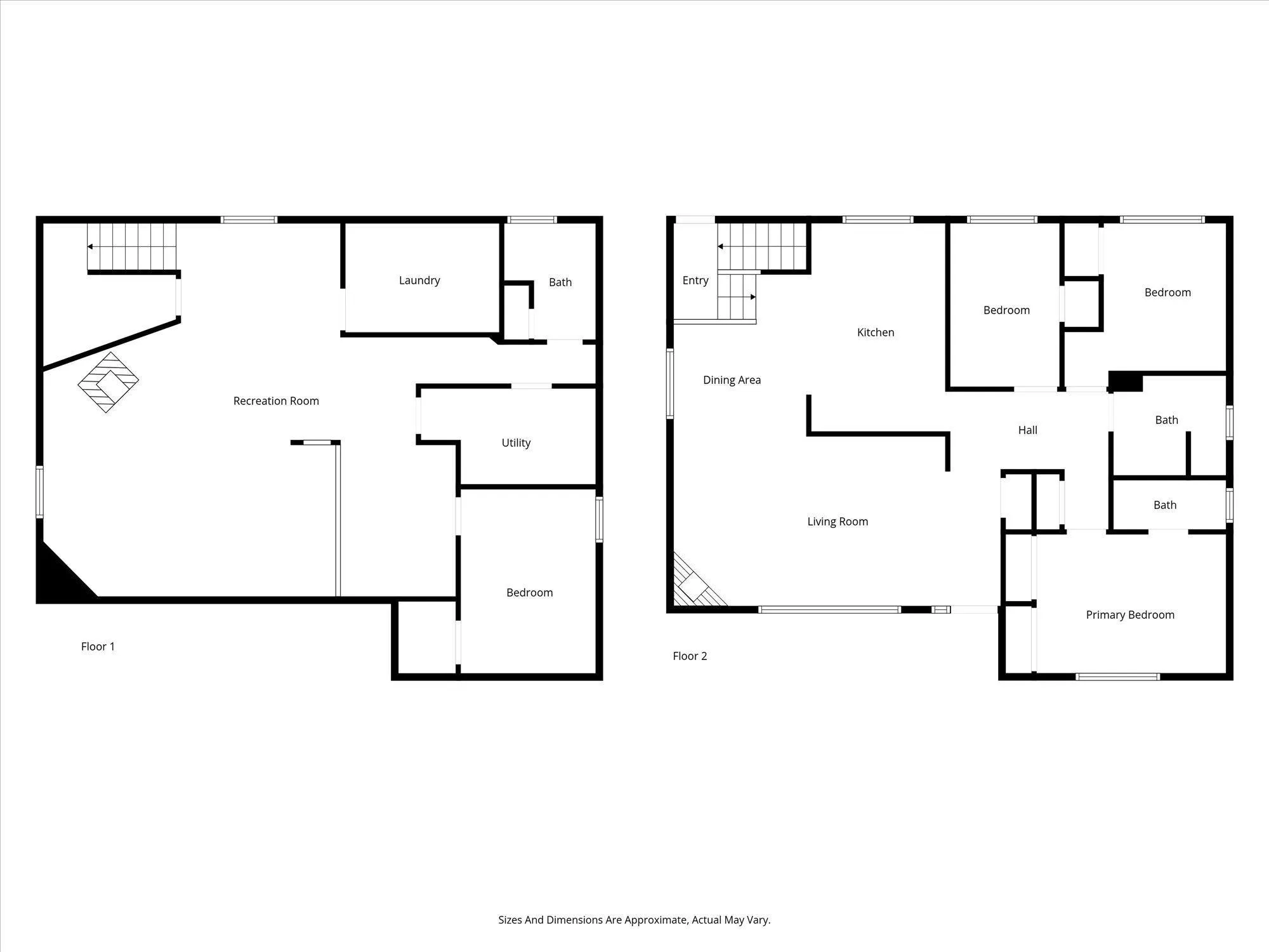
Description
Welcome to this charming 1204sq ft bungalow in the heart of Devon with a fully finished basement and thoughtful updates throughout. The main floor offers 3 spacious bedrooms, a 4-piece bathroom, and a 2-piece ensuite off the primary. The bright living area features a cozy gas fireplace and flows int...o the kitchen, which has been upgraded with black stainless steel appliances. Downstairs, the finished basement provides plenty of extra living space which is perfect for a rec room, family area, or hobby space. The home also features a double detached heated garage, ideal for our Alberta winters. Step outside to a backyard that’s move-in ready with fresh new sod, creating a perfect spot for kids, pets, or summer entertaining. The new washer & dryer add extra convenience, while the furnace—though not new—has been completely redone with all parts replaced, giving peace of mind for years to come. This well-kept home combines comfort and practicality in a family-friendly community.
Similar Properties (No results)
Courtesy of: Deanalee Dressler, RE/MAX PREFERRED CHOICE