$687,400 Sale
Listed 7 hours ago
9009 153 Street
· 6
· 4
· 2
· 1786.82
Key Facts
Key facts for 9009 153 Street
Property Type
House, 2 Storey
Parking
Double Garage Detached 2 garage, Double Garage Detached
MLS®
E4464232
Size
1786.82 sqft
Basement
Full,Finished, Fully Finished
Listed on
-
Lot size
-
Tax
-
Days on Website
-
Year Built
2025
Maintenance Fee
-
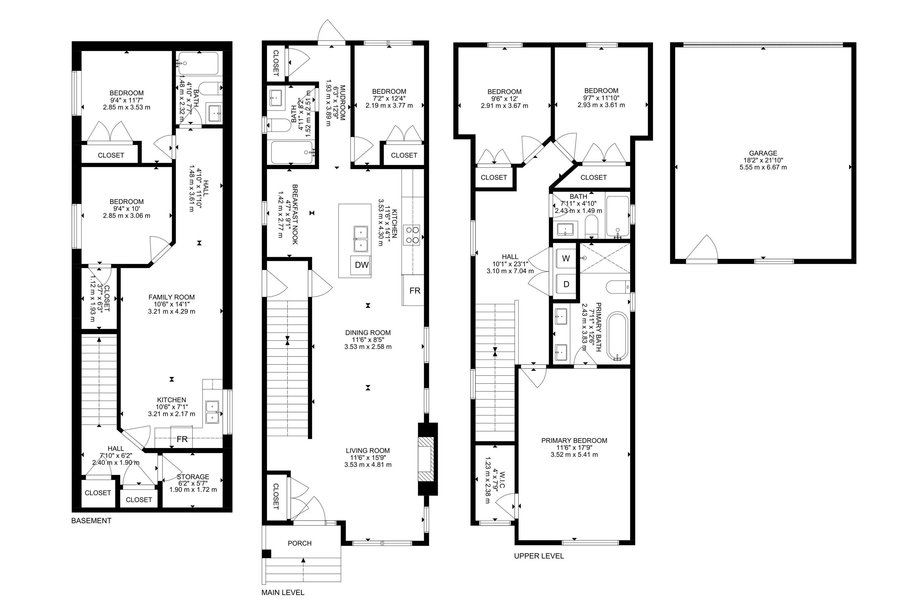
Description
UPGRADED HOME IN THE COMMUNITY OF JASPER PARK! This Brand New home offers 2540 Sq Ft of living space with 6 bedrooms, 4 baths, 9ft ceilings, 8ft doors. Main floor offers vinyl plank flooring, bedroom, Full bath, family room, fireplace. Kitchen with modern high cabinetry, quartz countertops, island. ...Amply Large Mud room, Spacious dinning area with ample sunlight is perfect for get togethers. Walk up stairs to Grand master Suite with 5 piece ensuite/spacious walk in closet, 2 more bedrooms with fully modern common bath, Laundry and bonus area. Fully finished 2 bedroom legal basement suite with separate entrance, 2nd Kitchen, Full bath and Laundry. Your dream home sitting on HUGE lot is next to James Gibbons School, parks, amenities. Includes DETACHED Double Car Garage, TRIPLE PANE WINDOWS, ROUGH GRADE, GAS LINE IN KITCHEN & PATIO. this home offers exceptional value and style. Move-in ready - Don't miss out on this fantastic opportunity!
Similar Properties (No results)
Courtesy of: Mandeep Kandola, Century 21 All Stars Realty Ltd