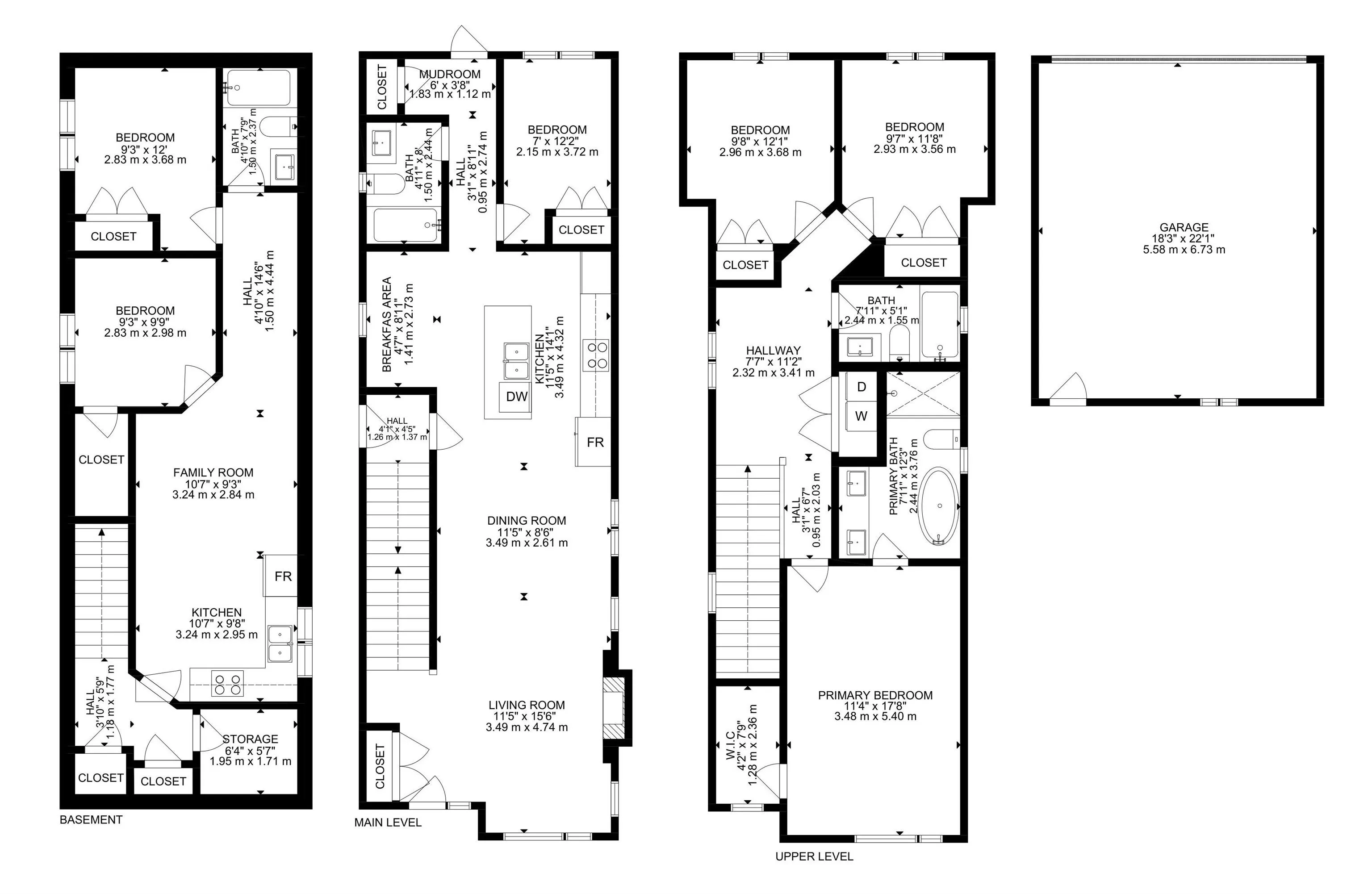
Property Type
House, 2 Storey
Parking
Double Garage Detached 2 garage, Double Garage Detached
MLS®
E4464233
Size
1786.82 sqft
Basement
Full,Finished, Fully Finished
Listed on
-
Lot size
-
Tax
-
Days on Website
-
Year Built
2025
Maintenance Fee
-
