$249,900 Sale
Listed 3 hours ago
1144 ADAMSON Drive
· 2
· 2
· 2
· 779.10
Key Facts
Key facts for 1144 ADAMSON Drive
Property Type
Apartment, Single Level Apartment
Parking
Stall,Underground , Stall,Underground 2 parking
MLS®
E4464278
Size
779.10 sqft
Basement
None,No Basement, No Basement
Listed on
-
Lot size
-
Tax
-
Days on Website
-
Year Built
2014
Maintenance Fee
$418.88 /mo
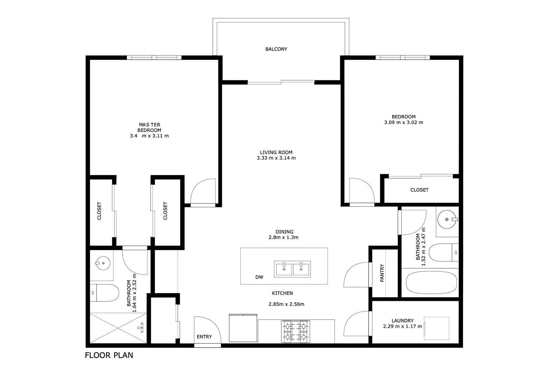
Description
Top-floor living with park views! Welcome to Élan, one of southwest Edmonton’s most sought after condos. This beautifully maintained 2 bed 2 bath home offers a smart layout, upscale finishes, & 2 titled parking, 1 surface & other heated underground + private storage locker. Inside, you’ll find rich ...dark laminate flooring, soft carpet in the bedrooms, & ceramic tile in the bathrooms for both style and durability. Open concept kitchen features stainless steel appliances, quartz countertops, white cabinetry & large island with seating, perfect for everyday living & entertaining. Spacious living room opens to a private East-facing balcony overlooking a tranquil park, offering sunshine & scenery year round. Master suite includes a walk through closet & full ensuite, while the second bedroom is ideal for guests, office, or roommate. In-suite laundry, a secure building with an exercise + social room, prime location close to shops, schools, and Henday make this a perfect place to call home.
Similar Properties (No results)
Courtesy of: Selena Cheung, RE/MAX Excellence